Trilocale in vendita

Molveno, Via Belvedere
€ 462.000
3 locali 3 locali
84 Mq 84 Mq
1 bagno 1 bagno

Trilocale in vendita

Molveno, Via Belvedere

Descrizione annuncio

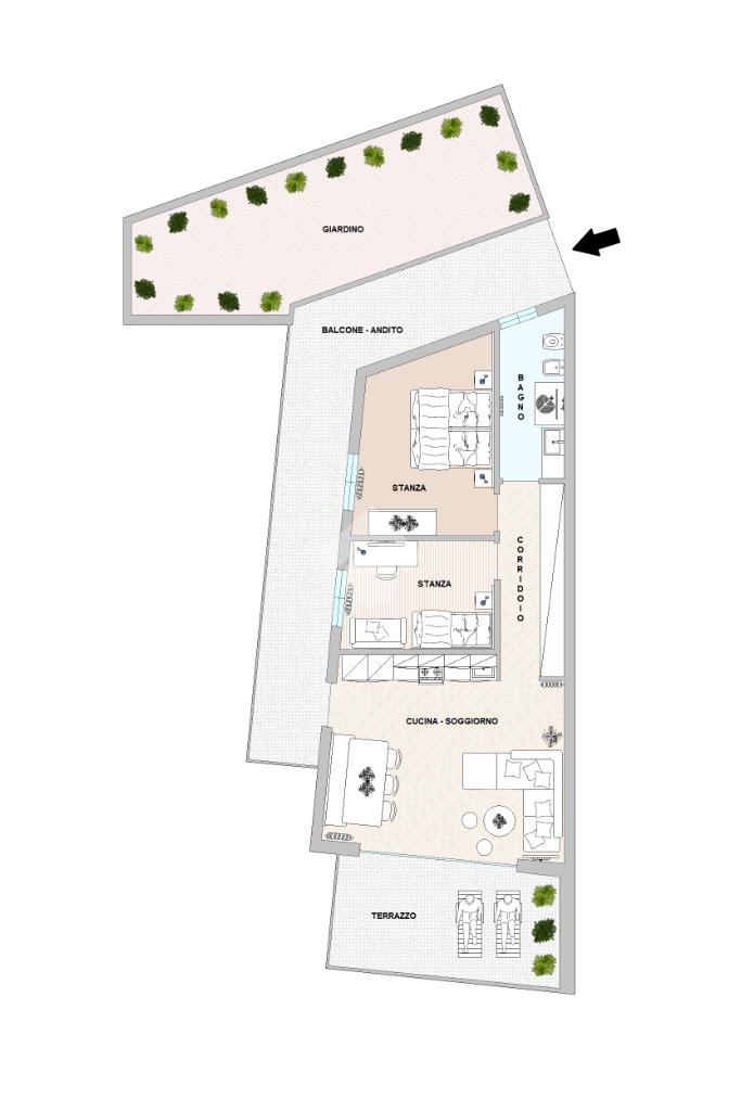
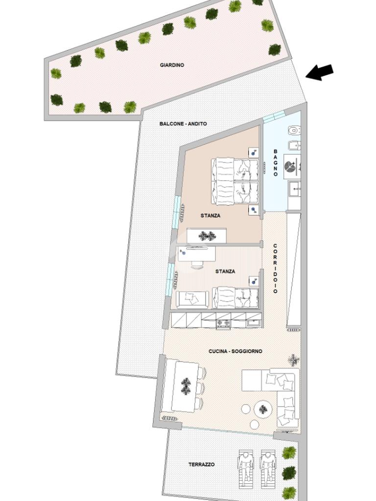
MOLVENO - Via Belvedere - Attico trilocale di 84 mq con terrazzo e giardino

In recente palazzina di sei unità abitative, prestigioso attico con terrazzo panoramico vista lago composta da cucina-soggiorno, due stanze, bagno finestrato, corridoio, balcone e andito/giardino privato. Completa di box auto, posto auto coperto e cantina. Riscaldamento centralizzato a gas metano con conta-calorie. Pannelli solari per la produzione di acqua calda e fotovoltaici per la produzione di energia elettrica. Arredi inclusi (ad eccezione della camera matrimoniale). Ottima esposizione. Zona tranquilla con vista panoramica sul lago di Molveno e sul Brenta.

Mostra tutto

Nelle vicinanze

Trasporto pubblico Trasporto pubblico
Trasporto pubblico
150 m
Via Nazionale / funivie
Via Nazionale / funivie
390 m
Ricariche auto elettriche Ricariche auto elettriche
Molveno Parcheggio Valbinaghe | Neogy
450 m
COOP Molveno | NEOGY
1,1 Km
Scuole Scuole
Scuola primaria "L. Nicolussi" Molveno
610 m
Scuola Elementare Luigi Nicolussi
720 m
Farmacia Farmacia
Farmacia Margonari Ada
520 m
Supermercati Supermercati
Central Market
490 m
Famiglia Cooperativa
1,1 Km
Supermercati
1,3 Km
Negozi Negozi
Lilly Tricot
500 m
Negozi
530 m
Bar Bar
Imperia
510 m
Bar
510 m
Meeting
530 m
Cristallo
550 m
Bar Malibù
670 m
Ristoranti Ristoranti
Agriturismo Ai Castioni
360 m
Bucaneve
430 m
Bar Ciao
450 m
Taverna La Botte
480 m
Antica Bosnia
490 m
Mostra tutto

Caratteristiche

Rif.:
61144089
Piano:
2 di 3 con ascensore (Piano mansarda)
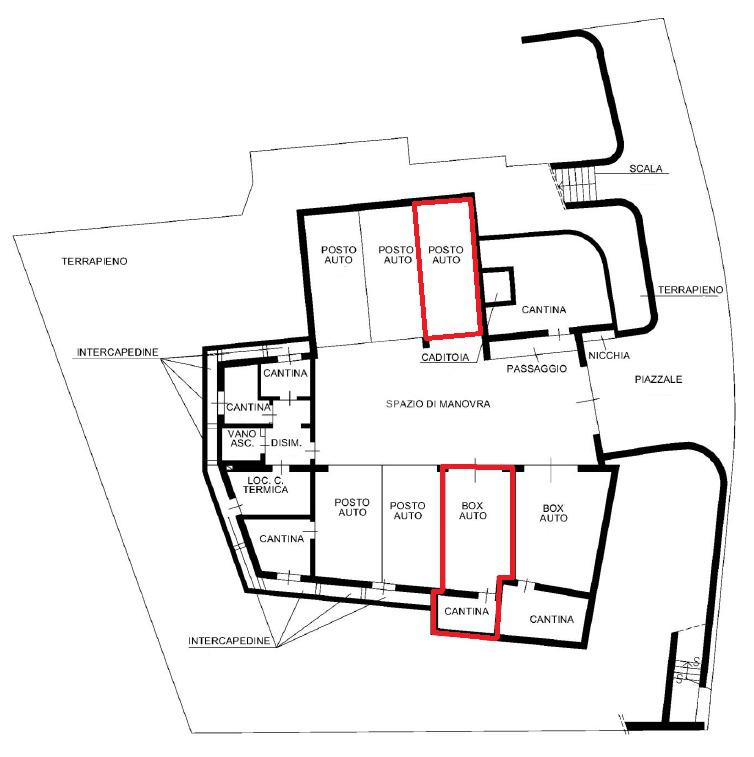
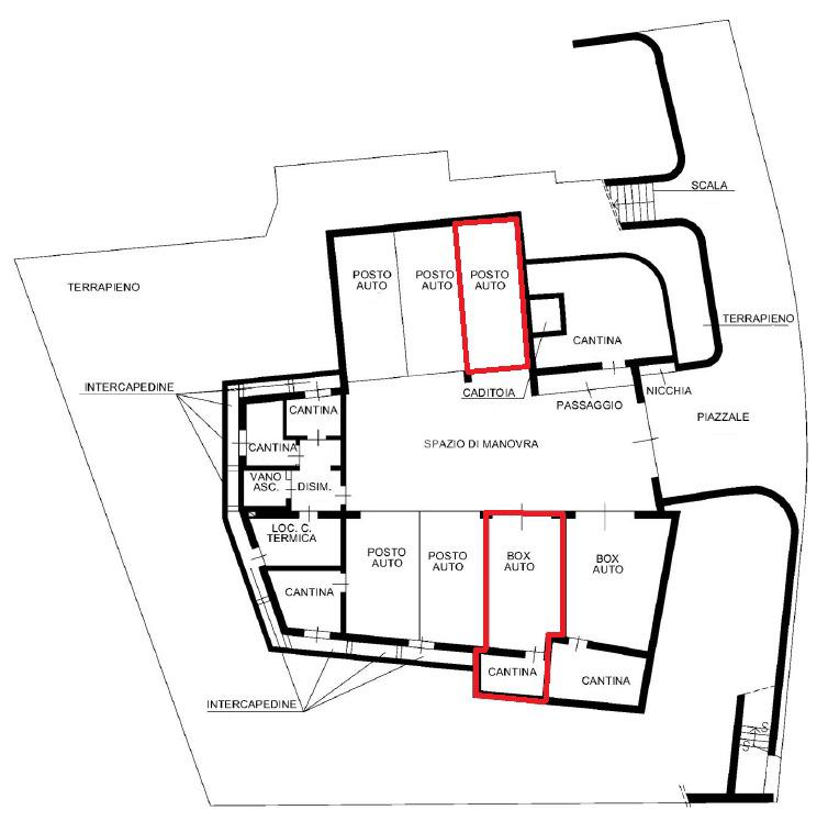
Box:
1
Posti auto:
1
Balconi:
1
Terrazzi:
1
Mostra tutto
Prezzo Prezzo
€ 462.000
Rata mutuo Rata mutuo
€ 2.178 / mese
Proponi il tuo prezzoProponi il tuo prezzo

Classe Energetica

Questo immobile è esente da classe energetica
Anno di costruzione:
2016
Riscaldamento:
Centralizzato
Tipo impianto:
A radiatori
Tipo alimentazione:
Metano

Ti interessa visionare l'immobile?

Fissa un appuntamento  Fissa un appuntamento

Richiedi informazioni

Clicca su Leggi per aprire l'informativa
* Questi campi sono obbligatori

Calcola il tuo mutuo

Semplice e senza impegno
Anticipo

( % )
Mutuo

( % )

pochi semplici passi

inserisci i tuoi dati
Questionario completato
Grazie per aver richiesto un appuntamento senza impegno con un nostro Consulente del Credito e Assicurativo.

Hai inserito correttamente tutti i dati necessari e a breve riceverai una e-mail con un link da convalidare per inviare i tuoi dati.
Affiliato
Studio Andalo D.I.
Viale Trento, 15 38010 Andalo (TN)

Il nostro staff


  • Umberto Collini
    Affiliato

  • Mattia Cattani
    Collaboratore

  • Veronica Osti
    Collaboratrice
Viale Trento, 15 38010 Andalo (TN)
Zona: Andalo
Mostra su mappa
Orari: Da lunedì a sabato dalle 9.00 alle 12.30 e dalle 14.30 alle 19.00. Domenica aperto su appuntamento.
Affiliato
Studio Andalo D.I.
Viale Trento, 15 38010 Andalo (TN)

2025 Tecnocasa Franchising S.p.A. - P. IVA 08365160152 - Via Monte Bianco 60/A 20089 Rozzano (MI). Ogni agenzia ha un proprio titolare ed è autonoma. Privacy policy | Policy utilizzo | Cookie policy