Bilocale in vendita

Andalo, Via Paganella
€ 265.000
2 locali 2 locali
42 Mq 42 Mq
1 bagno 1 bagno

Bilocale in vendita

Andalo, Via Paganella

Descrizione annuncio

Andalo, Via Paganella.

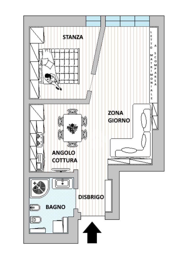
A due passi dal centro ed a 50 m dalla partenza degli impianti, elegante piano terra di recente ristrutturazione composto da atrio, zona giorno con divano letto, angolo cottura, stanza matrimoniale e bagno. Al piano interrato cantina. Comodo a tutti i servizi ed alla partenza degli impianti da sci. Edificio totalmente riqualificato dal punto di vista energetico con posa cappotto, sostituzione caldaia e serramenti in triplo-vetro. Sonda elettrica per riscaldamento con accensione da remoto. Posti auto condominiali.

Mostra tutto

Nelle vicinanze

Trasporto pubblico Trasporto pubblico
Trasporto pubblico
40 m
Andalo Piazza Dolomiti
Andalo Piazza Dolomiti
300 m
Ricariche auto elettriche Ricariche auto elettriche
FAMIGLIA COOPERATIVA Cavedago | NEOGY
2,8 Km
Supermercati Supermercati
Alimentari Dal Marcante
270 m
Conad City
350 m
Coop Trentino
560 m
Negozi Negozi
Outlet Iana
2,2 Km
Famiglia Cooperativa
2,8 Km
Bar Bar
Bar BO
230 m
Caffè Vienna
230 m
Caffè Centrale
260 m
La Stua
330 m
Dolci Note
430 m
Ristoranti Ristoranti
Bistrot Dolomieu
290 m
Pizzeria Romantica
300 m
Ski Bar
590 m
Ristoranti
650 m
La Lanterna
680 m
Mostra tutto

Caratteristiche

Rif.:
61142269
Piano:
Basso di 6 con ascensore
Totale piani:
6
Camere da letto:
1
Condizionamento:
Assente
Ascensore:
Mostra tutto
Prezzo Prezzo
€ 265.000
Rata mutuo Rata mutuo
€ 1.250 / mese
Proponi il tuo prezzoProponi il tuo prezzo

Altre caratteristiche

Descrizione dei locali
Altri Locali cantina

Classe Energetica

Questo immobile è esente da classe energetica
Anno di costruzione:
1967
Riscaldamento:
Centralizzato
Tipo impianto:
A radiatori
Tipo alimentazione:
Metano

Ti interessa visionare l'immobile?

Fissa un appuntamento  Fissa un appuntamento

Richiedi informazioni

Clicca su Leggi per aprire l'informativa
* Questi campi sono obbligatori

Calcola il tuo mutuo

Semplice e senza impegno
Anticipo

( % )
Mutuo

( % )

pochi semplici passi

inserisci i tuoi dati
Questionario completato
Grazie per aver richiesto un appuntamento senza impegno con un nostro Consulente del Credito e Assicurativo.

Hai inserito correttamente tutti i dati necessari e a breve riceverai una e-mail con un link da convalidare per inviare i tuoi dati.
Affiliato
Studio Andalo D.I.
Viale Trento, 15 38010 Andalo (TN)

Il nostro staff


  • Umberto Collini
    Affiliato

  • Mattia Cattani
    Collaboratore

  • Veronica Osti
    Collaboratrice
Viale Trento, 15 38010 Andalo (TN)
Zona: Andalo
Mostra su mappa
Orari: Da lunedì a sabato dalle 9.00 alle 12.30 e dalle 14.30 alle 19.00. Domenica aperto su appuntamento.
Affiliato
Studio Andalo D.I.
Viale Trento, 15 38010 Andalo (TN)

2025 Tecnocasa Franchising S.p.A. - P. IVA 08365160152 - Via Monte Bianco 60/A 20089 Rozzano (MI). Ogni agenzia ha un proprio titolare ed è autonoma. Privacy policy | Policy utilizzo | Cookie policy